Thiết kế căn hộ Tòa Park 1 Times City Park Hill
Tòa Park 1 có vị trí đẹp nhất Park Hill-Times City, thiết kế tối ưu không có cột trong nhà, với diện tích căn hộ từ 76.4m2-132.2m2, số phòng ngủ từ 2-4.
Chi tiết thiết kế từng căn hộ tòa Park 1 - Times City Park Hill
Căn hộ 03 tòa Park 1, diện tích 76.4m2, thiết kế 2 phòng ngủ sáng
Căn hộ 05 tòa Park 1, diện tích 79m2, thiết kế 2 phòng ngủ sáng

Căn hộ 12B tòa Park 1, diện tích 79m2, thiết kế 2 phòng ngủ sáng
Căn hộ 01 tòa Park 1, diện tích 82m2, thiết kế 2 phòng ngủ sáng

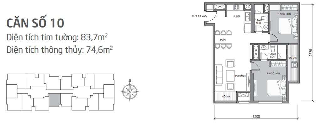
Căn hộ 09, 10 tòa Park 1, diện tích 83.7m2, thiết kế 2 phòng ngủ sáng
Căn hộ 02 tòa Park 1, diện tích 85.2m2, thiết kế 2 phòng ngủ sáng

Thiết kế căn hộ Park 1 - có 3 phòng ngủ
Căn hộ 07, 12 tòa Park 1, diện tích 92m2, thiết kế 3 phòng ngủ
Căn hộ 08, 11 tòa Park 1, diện tích 105.4m2, thiết kế 3 phòng ngủ sáng

Căn hộ 06, 12A tòa Park 1, diện tích 115m2, thiết kế 3 phòng ngủ sáng (căn góc)
Căn hộ 17 tòa Park 1, diện tích 118m2, thiết kế 3 phòng ngủ sáng
Căn hộ 16 tòa Park 1, diện tích 125m2, thiết kế 3 phòng ngủ sáng
Thiết kế căn hộ Park 1 - có 4 phòng ngủ
Căn hộ 04, 15 tòa Park 1, diện tích 132m2, thiết kế 4 phòng ngủ
Quý khách quan tâm căn hộ Times City Park Hill xin liên hệ:
Địa chỉ: Tầng 3-Tower 1, KĐT Times City, số 458 Minh Khai, Phường Vĩnh Tuy, Quận Hai Bà Trưng, Hà Nội..
Hotline: 0934 666 720 - 0988.561.821